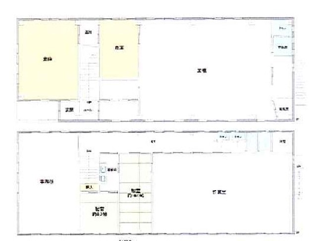
物件NO CF-0002 種別 売工場 所在地 流山市駒木 土地面積(坪) 115.25坪 価格/賃料 9,480万円 用途地域 工業 現況 建蔽率 60% 引渡し可能日 空家・引渡日相談 容積率 200% 交通 常磐 「柏インター」4.2㎞ 東武野田線「豊四季」駅徒歩20分 接道 北東4m その他 昭和60年築・工場・倉庫・事務所・都市ガス 土地381㎡(115.25坪) 1階228.52㎡・2階235.41㎡ 周辺マップ