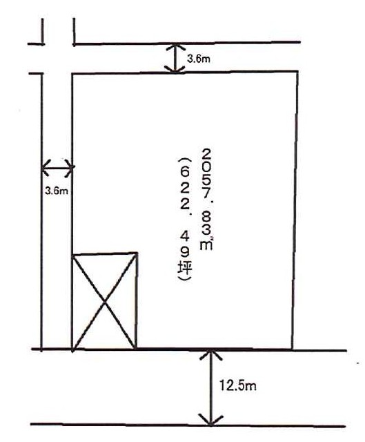
物件NO CG-0016 種別 売土地 所在地 野田市関宿台町 土地面積(坪) 622.49坪 価格/賃料 9,960万円 用途地域 2住居 現況 更地 建蔽率 60% 引渡し可能日 現況更地・即引渡可 容積率 200% 交通 圏央道 「五霞インター」4㎞ 東武日光線「幸手」駅8.5㎞ 接道 東12.5m 南3.6m 西3.6m その他 県道17号流山街道沿い・店舗・事務所等用地 事業用地・2057.83㎡(622.49坪) 流山街道沿い・店舗・事務所等用地 周辺マップ