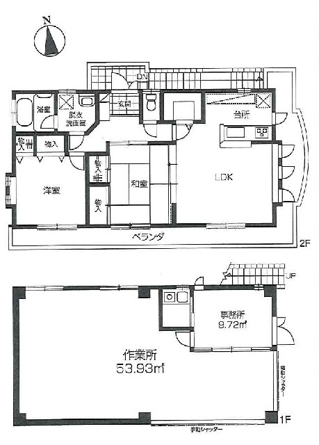
物件NO SF-0009 種別 売工場 所在地 朝霞市膝折町3丁目 土地面積(坪) 173.80坪 価格/賃料 6,830万円 用途地域 工業 現況 建蔽率 60% 引渡し可能日 使用中・引渡日相談 容積率 200% 交通 関越 「所沢インター」4.6㎞ 東武東上線「朝霞」駅バス20分バス停歩10分 接道 東7m その他 平成13年築・1階作業所事務所・2階住居 土地面積574.56㎡(173.8坪) 工業地域・工場・事務所・住居 周辺マップ